Med den rektangulære, kompakte form udnyttes pladsen optimalt. Måske er det derfor, man har bygget længehuse siden tidernes morgen og over hele kloden.
Flere soveafdelinger
HHMs længehus har soveafdeling i hver sin ende af huset, hvilket gør det velegnet til børnefamilier. Den mindste model har et traditionelt køkken. I de øvrige er køkken/alrum centralt placeret som familiens samlingspunkt.
Længehuset fås også som lavenergihus
Det giver en meget lav varmeregning
Brug for mere plads?
Hvis du har brug for mere plads end vores modeller lægger op til, så kan HHMs arkitekt udarbejde et forslag, der passer til jeres behov.
Ellers er det forskudte længehus, vinkelhuset eller 1½ plans huset gode alternativer.

Fra 115 til 167 kvadratmeter
På HHMs hjemmeside kan du se de enkelte modeller og beskrivelser, samt grundplaner:
Se de enkelte modeller og beskrivelser, samt grundplaner her.



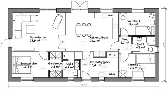
Det kunne se sådan ud – plantegning over et længehus på 125 m2.

Du kan vælge mellem de smukke typehuse tegnet af dygtige arkitekter eller du kan komme med dit helt eget oplæg til dit drømmehus, så hjælper vores arkitekter og ingeniører dig med at få realiseret husprojektet.
Du kan vælge mellem de smukke typehuse tegnet af dygtige arkitekter eller du kan komme med dit helt eget oplæg til dit drømmehus, så hjælper vores arkitekter og ingeniører dig med at få realiseret husprojektet.

© 1998-2026 bygogbolig.dk ApS